Living in a small flat inspired me to reimagine my room as a multifunctional space – a place to relax and work while maintaining a stylish, cozy atmosphere with a personal touch. As a Feng Shui Consultant and Interior Designer, I like to look at every space individually and follow a simple concept of how to approach furnishing a room. And I'm going to show you exactly how I did it.
Step 1. From Status Quo to vision of the room
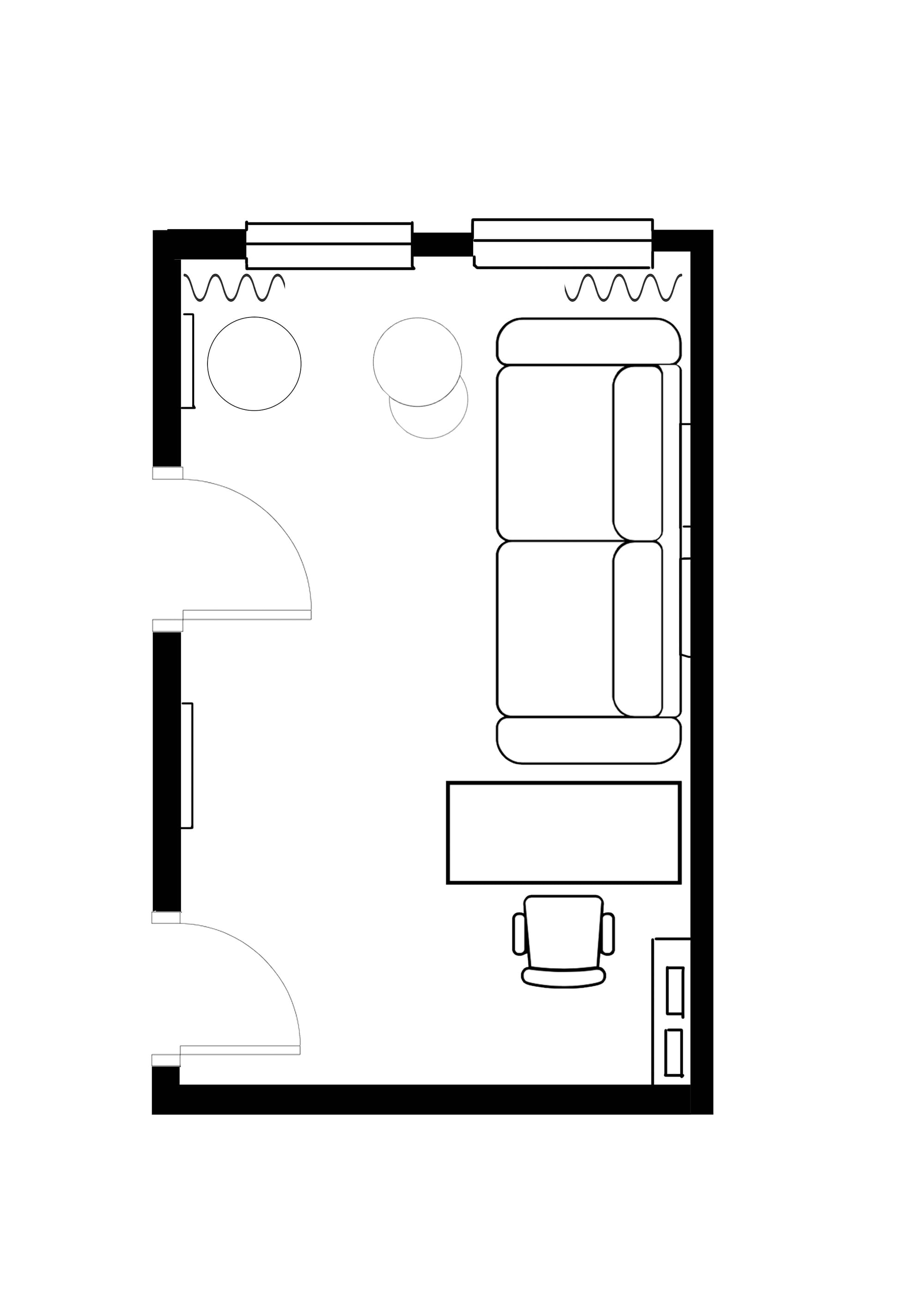
The first question I ask myself is: "What purpose the room is supposed to serve?". I start with drawing the floor plan and looking at the room's conditions: Where are the windows, doors or unique characteristics of the room?
Since I wanted to combine the living room and office into one, it was important to separate the room and its two different energies. I needed a place where I could do both, work and relax.
Floor plan
Step 2. Finding the right size
The next step was to look up dimensions for appropriate furniture. These should be neither too big nor too small for a room of around 12 square meters, meet my seating needs of 1-2 guests and have enough space for work materials.
Before Pictures
Step 3. Desk position – According to Feng Shui principles
The position of the desk is a priority of the room. Your desk should be in the power position of the room. According to the principles of Feng Shui, it is important to have a clear view of windows and doors and a solid wall behind you, giving you support and stability. Avoid facing the wall directly as it will limit your thoughts.


Step 4. The art of balancing materials and colors
Feng Shui emphasizes earthy and muted shades to create a sense of calm. As a creative interior designer, I enjoy introducing a variety of colors and textures while maintaining harmony. The living room should feel cozy while also functioning as a formal space where you can host friends and family, offering something visually appealing to behold.
- Contrast: I enjoy mixing materials such as corduroy, wood, marble or glass, along with a thoughtful mix of neutral and bold colors. My goal is to create a balanced overall picture that feels like a personal artwork where each element harmonises beautifully. The room should evoke a sense of warmth and individuality.
- Create a highlight: When designing, I always ask, “What is the first thing you see when you enter a room?” In my case, the first thing you look at is my couch. I chose an eye-catching sofa in old pink with a corduroy surface. Choosing a standout piece with an exciting texture, shape or color that gives the space personality and makes it feel unique.


Step 5. Decorating
The power of decoration is very underestimated. Thoughtful decor can truly round off any room, add character and make it feel special. I love to incorporate my favourite coffee table books, which not only serve as conversation starters but also add a touch of personality to the space. Vases filled with fresh flowers bring life and color, while candles create a warm and inviting atmosphere. One of my favourite pieces is my globe-shaped mini bar - a functional yet unique statement piece that sparks curiosity. Together, these elements transform a simple room into a curated haven, reflecting individuality and inviting warmth and connection.

Step 6. Lighting matters
Lighting plays a crucial role in setting the mood and functionality of a space. I’ve carefully curated a combination of light sources to suit different situations. The main light fixture is bright enough to illuminate the entire area, for working tasks or daytime activities.
In the evening, small light sources create a warm and inviting ambience for entertaining guests or simply creating a cozy atmosphere. The chandelier, though slightly oversized for the space, has always been a dream of mine. It serves as a focal point, adding elegance and character to the room while drawing the eye upward.


With thoughtful planning and a balanced approach to design, even a small space can be transformed into a multifunctional area with style and character! If you are a Feng Shui and decor lover don't forget to follow me on Instagram.

Creator: Lisa Döricht
Instagram: @betterwayofhome